 Type FJS2.5 Fixed Jib Short - 2.5 Tonne. Click to view the larger image |
Forklift Traders offers a comprehensive range of multipurpose jib attachments for your forklift at affordable prices. The attachments distributed by Forklift Traders have a long standing reputation for being robust and enduring.
The range consists of the following models:
Fixed Jibs
The short and long
fixed jibs for loads from 2.5 to 10 tonne. Some models offer additional lifting height with the extension beam being raised above the fork pockets. Long jibs allow for long reach lifts, whilst short jibs are able to manoeuvre in confined spaces. All 7.5 and 10 tonne load models are fitted with wide fork pocket centres.
All fixed jibs come with a galvanised finish.
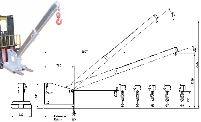
For more information click to view the product catalogue TJCL45 Tilt Jib. Click to view the larger image |
Tilt Jibs
The short and long
tilt jibs for loads from 2.5 to 5 tonne. Tilting Jibs allow for additional height, compensating for length of the hook and slings when lifting. The jib boom can be set at multiple angled positions as well as level. The jibs also offer different hook positions making them very versatile.
All tilt jibs have a galvanised finish.
The TJCL45 Tilt Jib is one of the most versatile forklift jib attachments in our range, allowing extra height to 2.23 metres, with a 3.53 metre reach when fully extended. This slip-on attachment is held to the forklift by a safety chain. The overall jib length when closed is 2.1 metres.For more information click to view the product catalogue Type TJCL45 Tilting Jib Long - 4.5 Tonne. Click to view the larger image |
|
Wide Fork Pocket Jibs
The special "wide fork pocket" jibs for loads from 2.5 to 5 tonne - (all jibs for loads of 7.5 and 10 tonne have wide pockets as standard).
These jibs are fitted with the fork pocket centres set at a wider measurement than the standard range. Whilst they can be used on standard forklifts, these jibs are manufactured to suit forklifts which cannot position the fork tines for the standard range of jibs, such as forklifts fitted with special hydraulic fork positioners. The wide pocket option is available on all 2.5 tonne and 5 tonne jibs.
 Type SFJS Wide Fork Pocket Jibs. Click to view the larger image |
 Type SJ2 Jib. Click to view the larger image |
|
The Type SJ2 Jib is a simple "slip-on" jib attachment, suitable for most forklifts. Two lifting points available, and supplied with one safety swivel hook.
The Type SJW Wide Pocket Jib is fitted with wide spaced fork pockets, and provides 2 lifting positions 550 mm apart. This is a simple slip on style jib, and is supplied with safety swivel hook.
 Type SJW Wide Pocket Jib. Click to view the larger image |
|
 Type SBJ6 Battery Removal Jib. Click to view the larger image |
The Type SBJ6 Battery Removal Jib is used for the removal and placement of battery packs into electric operated forklifts. Supplied with multiple lifting points and 4 slings, this unit can be used for both 2 point and 4 point lift For more information click to view the product catalogueCarriage Mounted Jib
The
GNJ Carriage Mounted Jib is a heavy duty carriage mounted jib that offers height and manoeuvrability.
 Type GNJ Carriage Mounted Jib. Click to view the larger image |
This jib mounts to a standard forklift carriage and comes with an optional support stand upon request. Enamel paint finish.
For more information click to view the product catalogueForklift Traders Pty. Limited - www.flt.com.au
Michael Carlin
International phone: +61 2 9897 5111
From Australia, phone: 1800 688 788
From New Zealand, phone: 0800 93 8000For more product information view the product catalogue here; or click to view the Forklift Traders ShopFront.